Espace propriétaire
fr

Votre recherche

Sous-compromis
Exclusivité
Lescure-d'Albigeois (81380)

4 pièces - 88 m²

Lescure d'Albigeois - Agréable maison T4 entièrement rénovée.

Nous consulter
Ref : VMA10001013
Découvrir le bien

Lescure d'Albigeois - Aucun travaux à prévoir pour cette belle maison pleine de charme.

Accès rocade 2km - Commerces 2,1km

Rénovée avec goût, libre sur 3 faces, elle mesure environ 88m2. A l'image de la maison, les extérieurs sont également parfaitement aménagés et renovés.

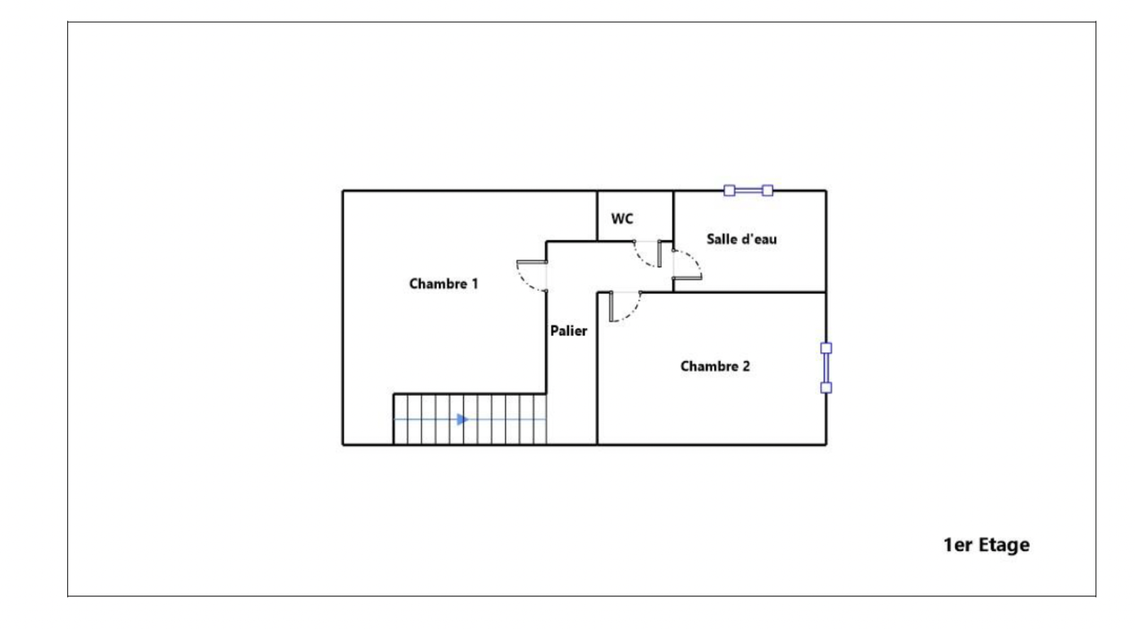
Au rez-de-chaussée, la pièce à vivre séjour et salle à manger de 32 m2, cuisine ouverte équipée avec un cellier / buanderie, une chambre et les toilettes. A l'étage le hall nuit avec deux chambres, une salle d'eau et toilettes.

Un garage avec coin buanderie.

Deux terrasses (exposition Nord / Sud), un garage, jardin clos et arboré.

La maison est climatisée sur les deux niveaux, chauffage électrique, menuiseries en PVC double vitrage, murs doublés et isolés, assainissement tout à l'égout (conforme). Aucun travaux à prévoir.

A découvrir en exclusivité dans votre agence L'Avenue joignable au 05 63 57 72 30 ou sur agence@avenue-grandalbigeois.fr pour plus de précisions.

Visite virtuelle disponible sur notre site. Mandat N°487 - Honoraires à la charge du vendeur.

Les informations sur les risques auxquels ce bien est exposé sont disponibles sur le site Géorisques : https://www.georisques.gouv.fr/

TRAD_ZEPHYR_Caracteristique TRAD_ZEPHYR_Valeurs
Code postal 81380
Surface habitable (m²) 88 m²
surface terrain 170 m²
Nombre de chambre(s) 3
Nombre de pièces 4
Nombre de niveaux 1
TRAD_ZEPHYR_Caracteristique TRAD_ZEPHYR_Valeurs
Nb de salle d'eau 1
Cuisine Américaine
Type de cuisine Equipée
Mode de chauffage Climatisation
Type de chauffage Air pulsé
Format de chauffage Individuel
Terrasse OUI
Murs mitoyens 1
Nombre de garage 1
Année de construction 1900
TRAD_ZEPHYR_Caracteristique TRAD_ZEPHYR_Valeurs
Copropriété OUI
plan de sauvegarde NON
TRAD_ZEPHYR_Caracteristique TRAD_ZEPHYR_Valeurs
Taxe foncière annuelle 1 133 €
Rez de chaussée
salon/sejour 31.98 m²

Carrelage

cuisine 7.61 m²

Carrelage

cellier 2.65 m²

Carrelage

WC 1.36 m²

Carrelage

bureau 7 m²

Carrelage

garage 18.15 m²

Carrelage

Etage 1
chambre 11.06 m²

Parquet flottant

chambre 13.59 m²

Parquet flottant

salle d'eau 5.94 m²

Parquet flottant

WC 0.98 m²

hall nuit 5.07 m²

Parquet flottant

DPE GES
CONTACTEZ-NOUS pour ce bien
L'agence
Téléphone 05 63 57 72 30
Adresse
2 rue François Arago 81000 Albi

* Champ obligatoire

Les informations recueillies sur ce formulaire sont enregistrées dans un fichier informatisé par La Boite Immo agissant comme Sous-traitant du traitement pour la gestion de la clientèle/prospects de l'Agence / du Réseau qui reste Responsable du Traitement de vos Données personnelles.
La base légale du traitement repose sur l’intérêt légitime de l'Agence / du Réseau.
Elles sont conservées jusqu'à demande de suppression et sont destinées à l'Agence / au Réseau.
Conformément à la loi « informatique et libertés », vous pouvez exercer votre droit d'accès aux données vous concernant et les faire rectifier en contactant l'Agence / le Réseau.
Si vous estimez, après avoir contacté l'Agence / le Réseau, que vos droits « Informatique et Libertés » ne sont pas respectés, vous pouvez adresser une réclamation à la CNIL.
Nous vous informons de l’existence de la liste d'opposition au démarchage téléphonique « Bloctel », sur laquelle vous pouvez vous inscrire ici : https://www.bloctel.gouv.fr 
Dans le cadre de la protection des Données personnelles, nous vous invitons à ne pas inscrire de Données sensibles dans le champ de saisie libre
Ce site est protégé par reCAPTCHA, les Politiques de Confidentialité et les Conditions d'Utilisation de Google s'appliquent.

Découvrir nos outils